Thank you for your interest in Schilling Construction Inc. We provide design and construction services for new homes, remodels, and additions, guiding clients through each phase with clear communication and careful planning.

Our Process

A close-up photo of a house wall with vertical beige siding, a small white-framed window, and green shutters. Shadows of tree branches are cast on the wall.

Plan

Close-up of diagonal wooden planks showing natural grain and texture.

Every project begins with understanding the full scope of your goals. Whether you’re considering vacant land for a new home or evaluating an existing property for a remodel or addition, we take the time to assess how the project should function on the site.

This includes evaluating neighborhood context, wind and sun patterns, privacy, access points, septic locations, outdoor living areas, and landscaping opportunities—ensuring the home fits both the land and the way you intend to live in it. If you already have completed plans, we can work with you or your architect to estimate costs, value engineer where appropriate, and establish a realistic working budget.

White marble hexagon tile pattern with light gray veining.
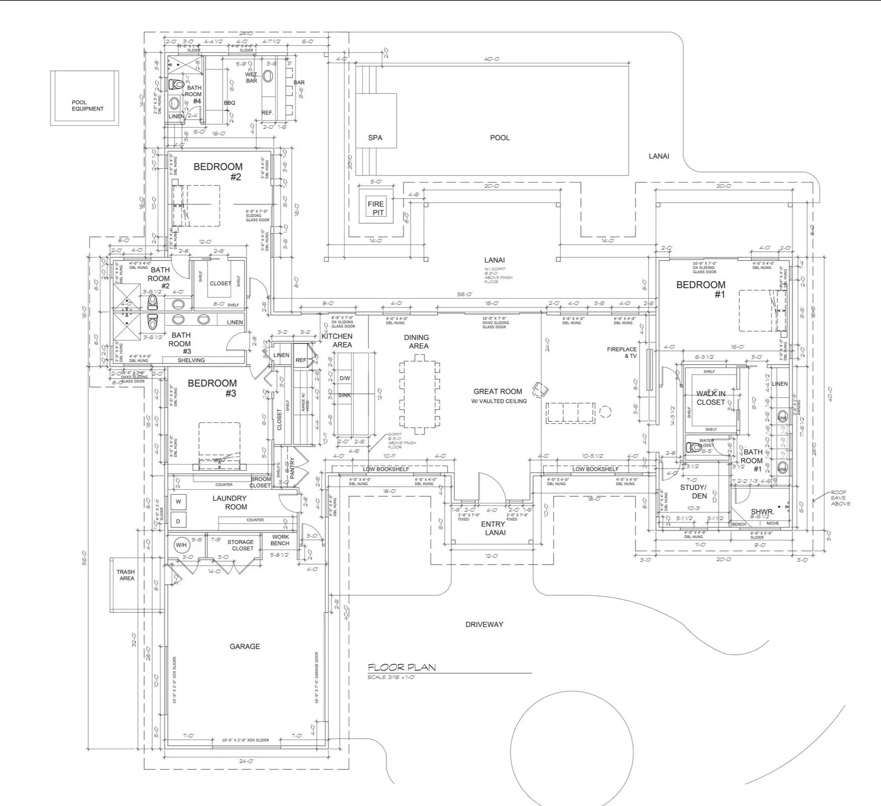
A detailed architectural floor plan of a house, showing room layouts, dimensions, and interior features.

Design


Modern house with large glass windows, stone and wood exterior, a small pool, and outdoor furniture.
Modern house exterior with large glass sliding doors, decorative black metal canopy, stone and wood siding, a small pool, and a stone-paved patio.
Modern bedroom with wooden walls, a bed with pillows, a small white bathtub, and open shelving on the left side. Large windows provide natural light, and the room has a minimalistic design.

CAD drawnings of the Szeto Project

Gerald Szeto,
Owner and Architect

During construction, we remain actively involved and accessible. We schedule walkthroughs and site visits to review progress and address details as the work moves forward. For clients who are on the mainland during construction, we provide frequent photographs and updates so you stay informed and connected to the project.

With a trusted network of subcontractors and trade partners, we focus on delivering work that is well executed, durable, and built to serve you for years to come.

Front view of a modern house with a driveway, white exterior walls, a covered entrance, and surrounded by greenery.
Construction site with wooden frame of a home in progress, green concrete pump extending overhead, green landscape and cloudy sky in background.

Build



As the project takes shape, we help guide both big-picture decisions and detailed selections. Our team works with you to develop and refine the design, making thoughtful choices that support long-term use and maintenance.

We can assist with selections such as roofing, siding, windows and doors, cabinetry, countertops, interior trim, flooring, and appliances. Throughout the process, we listen carefully to your needs and preferences, keeping the experience organized, collaborative, and as stress-free as possible.

A collaborative approach to building

Building or remodeling a home is a significant investment, and choosing the right team matters. If you’re ready to talk through your goals, timeline, and options, we’re here to listen and help guide the process.


Contact us to take the next step.